CH型箱式?jīng)_灰器
        干灰出力 
 | 
      噴嘴直徑 
 | 
      
         水壓 0.5MPa 
 | 
      
         水壓 0.6MPa 
 | 
      
         水壓 0.7MPa 
 | 
      水壓 0.8MPa 
 | 
    ||||
t/h 
 | 
      mm 
 | 
      水量m3/h 
 | 
      水灰比 
 | 
      水量m3/h 
 | 
      水灰比  
 | 
      水量m3/h 
 | 
      水灰比 
 | 
      水量m3/h 
 | 
      水灰比 
 | 
    
6 
 | 
      2-Φ10 
 | 
      19.24 
 | 
      3.20 
 | 
      20.90 
 | 
      3.48 
 | 
      22.70  
 | 
      3.78  
 | 
      24.30  
 | 
      4.05 
 | 
    
7 
 | 
      2-Φ12 
 | 
      26.40 
 | 
      3.77 
 | 
      28.60 
 | 
      4.08 
 | 
      30.90 
 | 
      4.41 
 | 
      33.30 
 | 
      4.76 
 | 
    
8 
 | 
      2-Φ12 
 | 
      26.00 
 | 
      3.30 
 | 
      28.60 
 | 
      3.58 
 | 
      30.90 
 | 
      3.86 
 | 
      33.30 
 | 
      4.16 
 | 
    
9 
 | 
      2-Φ14 
 | 
      34.00 
 | 
      3.77 
 | 
      37.20 
 | 
      4.13 
 | 
      40.40 
 | 
      4.48 
 | 
      43.20 
 | 
      4.80 
 | 
    
10 
 | 
      2-Φ14 
 | 
      34.00 
 | 
      3.40 
 | 
      37.20 
 | 
      3.72 
 | 
      40.40 
 | 
      4.04 
 | 
      43.20 
 | 
      4.32 
 | 
    
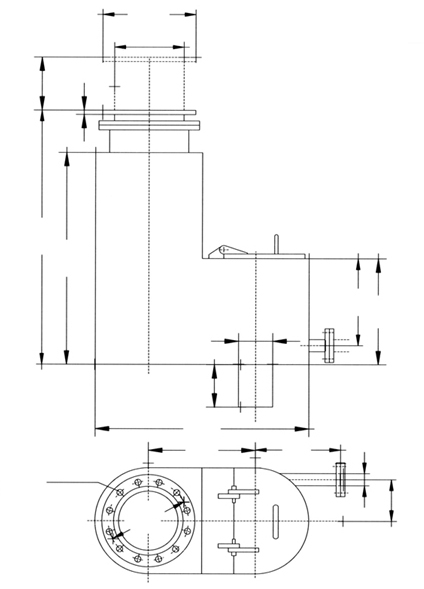
CH-1型外形尺寸圖
 
CH-2型主要性能表
干灰出力 
 | 
      噴嘴直徑 
 | 
      
         水壓 0.5MPa 
 | 
      
         水壓 0.6MPa 
 | 
      
         水壓 0.7MPa 
 | 
      水壓 0.8MPa 
 | 
    ||||
t/h 
 | 
      mm 
 | 
      水量m3/h 
 | 
      水灰比 
 | 
      水量m3/h 
 | 
      水灰比  
 | 
      水量m3/h 
 | 
      水灰比 
 | 
      水量m3/h 
 | 
      水灰比 
 | 
    
2 
 | 
      8 
 | 
      6.58  
 | 
      3.29  
 | 
      7.37 
 | 
      3.69 
 | 
      8.05  
 | 
      4.03  
 | 
      8.42  
 | 
      4.21 
 | 
    
3 
 | 
      10 
 | 
      9.62 
 | 
      3.2 
 | 
      10.45 
 | 
      3.48 
 | 
      11.35 
 | 
      3.78 
 | 
      12.15 
 | 
      4.05 
 | 
    
4 
 | 
      12 
 | 
      13.2 
 | 
      3.3 
 | 
      14.3 
 | 
      3.58 
 | 
      15.45 
 | 
      3.86 
 | 
      16.65 
 | 
      4.16 
 | 
    
5 
 | 
      12 
 | 
      13.2 
 | 
      2.64 
 | 
      14.3 
 | 
      2.86 
 | 
      15.45 
 | 
      3.09 
 | 
      16.65 
 | 
      3.33 
 | 
    
 	CH-2型外形尺寸圖
 
下一頁:XD型空氣輸送斜槽
    

